Na noite desta terça-feira (11), a comunidade de Cruzeiro do Sul acompanhou a segunda audiência pública para discutir o projeto de loteamento e construção do Novo Passo de Estrela, uma das principais iniciativas do plano de reconstrução habitacional destinado às famílias atingidas pela enchente de 2024.
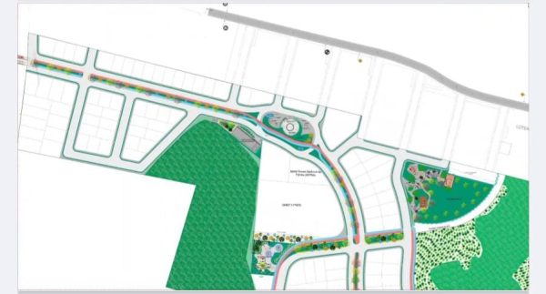
Conforme o cronograma divulgado pelo Governo do Estado do Rio Grande do Sul, as obras devem iniciar em maio de 2026. O projeto prevê a construção de 150 casas e a criação de 209 lotes urbanizados, totalizando 359 beneficiários.
A publicação do edital de concorrência licitatória para contratação da empresa responsável pela execução das obras ocorreu em 3 de novembro, com abertura das propostas marcada para 16 de dezembro, por meio da Central de Licitações (Celic), vinculada à Secretaria de Planejamento, Governança e Gestão (SPGG).
A previsão é de que o contrato com a construtora vencedora seja assinado em fevereiro de 2026, com entrega das moradias até abril de 2027.
O encontro, realizado no Salão da Comunidade Católica, foi promovido pelo Ministério Público e contou com a presença de representantes das secretarias estaduais de Meio Ambiente e Habitação, além de lideranças locais e moradores do Passo de Estrela.
O investimento total no empreendimento é estimado em R$ 87 milhões, valor que inclui a aquisição do terreno, infraestrutura e construção das moradias. A área desapropriada pelo Estado contemplará lotes residenciais, institucionais e comerciais, garantindo um novo espaço urbano planejado para o município.
Das famílias contempladas, 150 terão renda de até cinco salários mínimos, enquanto 209 se enquadram em faixas de renda superior.
O prefeito César Leandro Marmitt (Dingola) destacou a relevância da iniciativa para a reconstrução do município.
“Este é um passo histórico para Cruzeiro do Sul. Estamos falando de dignidade, de recomeço e de um novo futuro para centenas de famílias que enfrentaram perdas enormes. O Novo Passo de Estrela simboliza esperança e reconstrução para nossa comunidade”, afirmou o prefeito.
O promotor de Justiça Sérgio Diefenbach, que acompanha o processo desde o início, reforçou o compromisso do projeto com as famílias atingidas.
A audiência reforçou o compromisso conjunto entre o Estado, o Ministério Público e o Município de Cruzeiro do Sul para assegurar transparência, celeridade e inclusão social em uma das maiores obras habitacionais já planejadas para o Vale do Taquari.
Crédito: Cristiano Braga




